Блок решетка ТШПМ-0,8 в Калуге

Изготовим
под заказ
Цена с НДС на блок решетка ТШПМ-0,8 с доставкой в
от 114 000 рублей
Условия в
В наличии на складе
Доставка ТК по России и Казахстану
Безналичный расчет
Блок решетка ТШПМ
Блок решетка ТШПМ
Блок решетка ТШПМ
Видеообзор
Технические
характеристики
Описание
товара
Сертификаты
и гарантии

Технические характеристики

Тип оборудования Топка ТШПМ
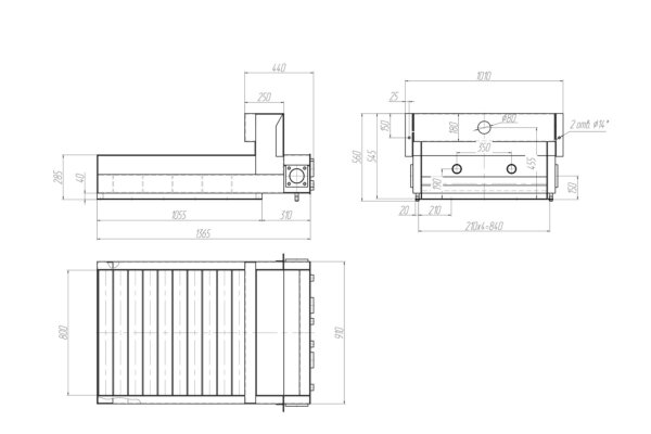
Блок решетка ТШПМ 0.8 чертеж
Чертеж блок решетки ТШПМ 0.8

Купить блок решетку ТШПМ-0,8

Для того, чтобы купить блок решетку ТШПМ-0,8 вы можете сделать заявку в отдел сбыта по телефону 8-800-700-06-43, либо оформить заказ он-лайн. Инженеры-консультанты дадут консультацию и рассчитают стоимость доставки. Транспортирование запасных частей топки ТШПМ может осуществляться автотранспортом, ж/д полувагонами и речным транспортом.

Сертификаты и гарантии

Сертификат для топок
Сертификат на топки

Отзывы о продукции

Другая похожая продукция

692 000 ₽
100 000 ₽
131 000 ₽
8 600 ₽
14 000 ₽